As interior designers, we create spaces that connect people to their environment in meaningful ways. Thoughtful interior design is central to our holistic approach across all project types from residential and workplace to cultural, educational, and civic environments. We craft interiors that are fully integrated with the architecture, balancing aesthetics, comfort, and efficiency. Whether part of a comprehensive architectural project or as a standalone service, our interior design team delivers detailed solutions, curating plans, materials, and furnishings to create environments that reflect your values and elevate everyday experiences.
Programming & Space Planning
We develop tailored space plans that align with your goals, enhance functionality, and improve flow. Our process defines layout, adjacencies, and user experience for efficient, flexible environments.
Interior Finishes & Millwork
We curate cohesive interior finish palettes with flooring, ceiling, wall and window treatments as well as lighting, hardware, and custom millwork tailored to your project’s function, style, and durability needs.
Furniture Design
From custom furniture design to procurement, we source pieces that align with your aesthetic, budget, and project goals, managing the process from selection through installation.
Artwork, Accessories, & Signage
We complete interiors with curated artwork, signage, and accessories that express brand identity, support wayfinding, and bring personality to each space.

Our team is detailed and comprehensive. For interior design in homes, we collaborate closely with you to unify the vision. As interior specialists, we work with the project’s conceptual narrative and uncover its expression in beautiful and tactile environments.




Residential Interiors
Our team is detailed and comprehensive. For interior design in homes, we collaborate closely with you to unify the vision. As interior specialists, we work with the project’s conceptual narrative and uncover its expression in beautiful and tactile environments.

Commercial Interiors
With diverse project experience, our interiors team enhances the expression of your project. Collaboratively, we design the project with you step by step, from initial ideation with stakeholders to development of thoughtful spatial organization and cohesive material and furnishing selections.

Renovations
Interior spaces need to thoughtfully integrate the old with the new, especially critical for renovations, creating a unified and cohesive experience. Our team will help you prioritize around your vision and reveal the full potential of your space.
Our interior design process is collaborative, comprehensive, and tailored to your goals. We begin by gathering input through a detailed discovery process and then develop design concepts that clarify the vision, character, and spatial relationships important to you. From there, we guide you through finish selections, detailed drawings, and specification of key elements such as plumbing fixtures, appliances, lighting, and millwork. The process culminates in the selection and procurement of furniture, artwork, signage, and accessories, ensuring a fully realized and cohesive interior environment.
Discovery
Our discovery process begins with listening. We gather client goals and aspirations so that every design decision is rooted in how the space will be experienced.

Design Concepts
In our concept development phase, we translate client needs into a clear design vision through space planning, material palettes, and visuals that define the character of the project.

Interior Finishes
Our interior finish selection process carefully curates materials to create cohesive, functional, and visually compelling spaces that align with the overall design vision.

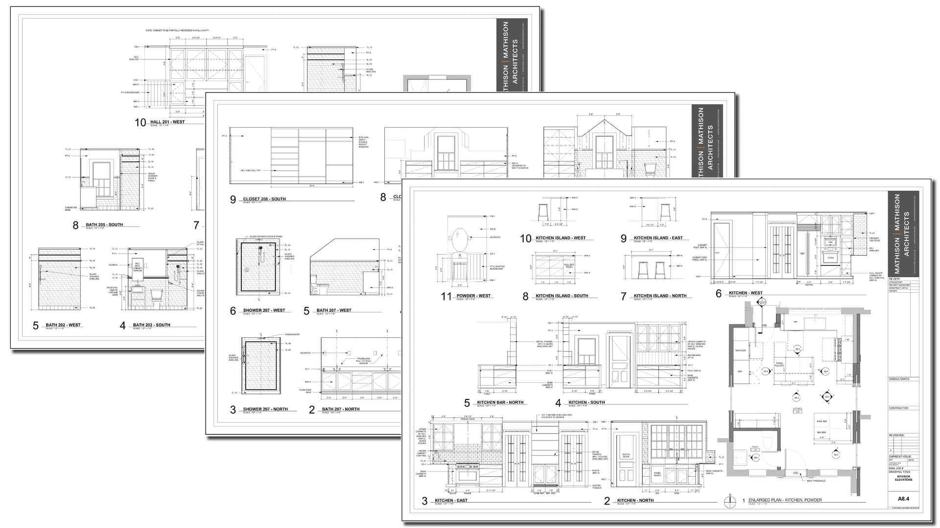
Documentation
During documentation we create detailed construction drawings and coordinate every material, fixture, and system with architectural and engineering requirements, ensuring seamless integration.

Selections
Our selections process carefully specifies and coordinates plumbing fixtures, lighting, appliances, and other essential elements, ensuring each piece is thoughtfully integrated with the overall design intent.

Furnishings
Our furnishings and procurement service delivers cohesive and personalized interiors by curating furniture, finishes, and accessories, while managing the entire process from sourcing to installation.

























